Преимущества и недостатки электрического обогрева
Электроотопление в частном дом обходится дороже, чем газовое, но дешевле котлов на твердом топливе. Поэтому его следует рассматривать, если нет возможности протянуть к дому газовую магистраль.
Недостаток электрического отопления в высокой оплате
Электроотопление дома имеет следующие преимущества:
- Простота монтажа. Для установки простейших электрических систем для отопления не требуется специальных инструментов и навыков. Оборудование имеет малые габариты, устанавливается быстро и с минимальными усилиями. Отопительный прибор при необходимости можно переместить в другое место. Не нужно монтировать дымоход и оборудовать котельное помещение.
- Безопасность. При обогреве дома электричеством не выделяется продуктов горения. Даже если система сломается, то вреда она не нанесет.
- Минимальные первоначальные вложения. Перед установкой такой отопительной системы не нужно заранее согласовывать свои действия со специальными службами и получать разрешительные документы.
- Просто использования. Электрические системы обогрева конструируются таким образом, что в них практически нет элементов, которые могли бы выйти из строя. Не нужно следить за наличием топлива и различными датчиками.
- Высокая теплоотдача. Проблем с обогревом здания не будет даже в лютую стужу.
Недостаток электрического отопления в высокой оплате
К минусам такого отопления следует отнести высокий расход электроэнергии. В зависимости от района проживания стоимость электричества может сильно различаться. В некоторых регионах такие системы становятся экономически невыгодными.
Другой существенный минус — энергозависимость. Если сеть обесточивается, то система становится бесполезной.
В сельской местности напряжение в электрических магистралях нестабильное. Для компенсации перепадов придется дополнительно приобрести дорогое оборудование. А для компенсации частных отключений нужно будет включить в систему аварийный бензиновый или дизельный электрогенератор. Это существенно осложняет и удорожает эксплуатацию.
Каким образом можно отопить частный дом электричеством увидите в этом видео:
Часто задаваемые вопросы
Насколько затратны электрические теплые полы?
Вопреки расхожему мнению, потребление электроэнергии у них не слишком велико. Его можно сравнить с потреблением масляного радиатора. При этом, режим работы теплого пола выбирается исходя из погодных и климатических условий, что позволяет экономить на обогреве в теплые дни.
Есть информация, что инфракрасные системы создают сильное электромагнитное излучение. Насколько оно опасно?
Этот вопрос был тщательно исследован и многократно проверен. Излучение от теплого пола в 20 раз ниже санитарной нормы. Для примера, излучение от телевизора гораздо выше, так что беспокоиться не о чем.
Можно ли изменять длину греющего кабеля?
Нет, этого делать нельзя. Кабель нарезается секциями определенной длины, рассчитанными на подключение к сети и создание заданной нагрузки. Если кабель укоротить, проводка окажется под угрозой перегрева. Кроме этого, может сработать УЗО, а потребление энергии станет слишком высоким.
Сколько времени служат теплые полы?
Если это продукция известных фирм, только гарантийный срок может составлять от 15 до 50 лет. Конечно, рассчитывать на такую долговечность можно только при условии соблюдения технологии монтажа и правил пользования.
Обязательно ли устанавливать терморегулятор?
Да, это обязательно. Иначе придется терпеть жару или замерзать при работающей системе нагрева. Установка терморегулятора не только позволит корректировать режим нагрева, но и даст возможность экономить на потреблении энергии в теплые дни.
Неподходящие варианты
Есть несколько типов электрооборудования, предназначенного для обогрева помещений, но не рекомендованного к использованию в качестве основного источника тепла:
- Тепловые вентиляторы. Эти приборы имеют самое простое устройство и представляют собой большой фен, состоящий из накаливаемой спирали и вентилятора, прогоняющего через нее поток воздуха. Их применение точно не обойдется дешево – воздух крайне быстро остывает, и удерживать комфортную температуру длительное время не получится. Не забывайте также о нагрузках на электрическую сеть и вреде – чересчур сухой воздух вреден для домашних растений и людей.
- Масляные радиаторы – самое, наверное, распространенное устройство, которым пользуются жители жильцы многоквартирных домов, когда мощности центрального отопления не хватает. Удивительно, что это еще наименее эффективный способ обогрева. И даже если нагреть помещение до комфортной температуры удастся, это выйдет совсем не дешево.
Почему же данное оборудование так распространено, если оно неэффективно. Дело в том, что все это – вспомогательные приборы, призванные выручить во внештатных ситуациях или когда основное отопление не справляется со своими задачами. Для гаража, например, не всегда нужен постоянный обогрев. На время ремонтных работ его можно обогревать с помощью тепловой пушки (тепловентилятора), работающей от электричества или газа. Но в доме, где необходимо постоянно удерживать температуру на определенном уровне, гораздо эффективнее инфракрасные панели.
Электрическое отопление водяного типа
В основе работы водяного автономного электроотопления лежит тот же принцип, что и в системах с газовыми, дизельными и твердотопливными котлами. Отличие касаются только использования для нагревания теплоносителя электрической энергии. Преимущество над прямым отоплением заключается в наличии тепловой инерции, позволяющей системе после прекращения подачи электричества еще какое-то время обогревать окружающее пространство, поддерживая в доме комфортную температуру.

Может показаться, что устройство электрического отопления квартиры – слишком дорогое удовольствие. Однако за разрешение на установку газового котла также приходится выложить немалые деньги. Электричество читается наиболее безопасным тепловым агентом, т.к. его использование исключает вероятность отравления, взрыва и других несчастных случаев. Чтобы установить электрический котел, не нужны специальные разрешения и создание дорогостоящих проектов.
Способ 2 — трубчатые электронагреватели
Передают тепло от трубчатого электро-нагревателя к теплоносителю на жидкой основе. Обычно в качестве теплоносителя используют воду и масло, иногда — антифриз. Принцип устройства нагревателей такой же, как у электрических чайников, поэтому их ещё называют калориферами и масляными радиаторами. Фактически это кипятильник, помещённый в сосуд с водой. КПД таких устройств достаточно высокий, а потери тепла на обогрев минимальны.
Плюсы
- К несомненным плюсам трубчатых нагревателей относится их безопасность, надёжность эксплуатации и универсальность применения.
- Могут быть использованы как в газообразных, так и в жидких средах.
- Не взрывоопасны, и не боятся вибраций и ударов.
- Трубчатые нагреватели выпускаются в разнообразных дизайнерских решениях, что позволяет, экономично отапливать частный дом электричеством не нарушая эстетики интерьера.
Минусы
Нагревательные ТЭНы имеют высокую стоимость из-за дорогих металлов, которые используют при производстве. Поскольку на трубках образуется накипь, необходимо заботиться о качестве воды.
Трубчатый радиатор— это тонкостенная металлическая трубка со спиралью внутри, поэтому, если вам не нужны особо высокие температуры, то нужно брать нагреватель с трубками из углеродистой стали. Если прибор должен выдавать стабильно высокую температуру или работать в агрессивной среде, то нужно брать устройство из нержавеющей стали.
На фото трубчатый электронагреватель, сделанный своими руками
Инфракрасные обогреватели
Есть несколько видов обогревателей, использующих в качестве передачи тепловой энергии излучение (радиацию). Этот способ передачи считается наиболее эффективным для обогрева помещения – вначале нагреваются предметы, стоящие на пути инфракрасного излучения, а затем от них, за счет вторичной конвекции, греется воздух.
Наглядно про инфракрасные обогреватели на видео:
Есть три принципиально разных по устройству типа инфракрасных обогревателей:
рефлекторы, у которых спираль накаливания заключена в колбе из кварцевого стекла;
панельные – в керамической монолитной плите «запаян» ТЭН;
пленочные – с карбоновым напылением на полимерной пленке.
Отопление дома электричеством первого типа тип относится к обогревателям, работающим в коротковолновом диапазоне ИК излучения.
Недостатки – самый низкий КПД (за счет видимой части излучения), отсутствие точной регулировки температуры и высокая температура корпуса.
Второй тип прибора работает в мягком длинноволновом диапазоне. Максимальная температура керамической панели не превышает 90°C, но на корпусе она еще ниже. Есть два типа управления – механический и электронный термостат. Первый вариант предполагает ручное управления и его точность невысока. С помощью электронных термостатов можно выставлять температуру с точностью до 1°C.

Инфракрасная панель настолько безопасна, что ее можно вешать на деревянные стены
Пленочные обогреватели самые эффективные. Обычно их используют в составе теплого пола, но в принципе их можно монтировать в стены или на потолке. Но именно монтаж в составе напольного покрытия более всего соответствует правильному и равномерному отоплению помещения. Управление работой происходит в автоматическом режиме с помощью пары «датчик температуры-термостат».

Если на полу недостаточно места, то пленочный обогреватель можно монтировать на любой свободной плоскости
Общие сведения
Плюсы и минусы
Как раз для тех домов, вблизи которых отсутствуют газовые магистрали, электрическое отопление станет грамотным и выгодным решением. Такое альтернативное отопление дома имеет очевидные плюсы:
- + для получения тепла не нужно ничего сжигать
- + не нужно регулярно пополнять запасы топлива
- + не нужно носить ничего тяжёлого и закладывать это в топку
- + топливо само течёт по проводам
Электрическая система отопления частного дома имеет и минусы:
- — значительный расход электроэнергии
- — постоянный рост тарифов ЖКХ
- — риск отключения электричества без предупреждения
- — необходимость приобретения автономного генератора на случай аварийного отключения системы
Какое электрическое отопление лучше?
Понятие электрического отопления включает в себя большой класс технических средств и способов.
На сегодняшний день система обогрева жилища может быть двух типов:
- С прямой теплоотдачей
- С промежуточным теплоносителем
Первый вариант предусматривает использование для отопления таких приборов как: электроконвектор, спиральный, инфракрасный или кварцевый обогреватель, теплоэлектровентилятор. Подобная бытовая техника при всём своём удобстве и простоте в эксплуатации, имеет существенный недостаток — очень большой расход электричества.
Сюда не относится система тёплого пола, о которой стоит рассказать отдельно. Она действительно поможет создать комфортную температуру в доме или на даче без лишних затрат.
Второй вариант — это система, в «сердце» которой устанавливается электрический отопительный котёл. Он нагревает теплоноситель до необходимой температуры и распространяет тепло по трубам. Реальные отзывы об использовании подобных систем отопления поможет найти любой строительный форум.
Если рассматривать в сравнении твердотопливный, жидкотопливный или пеллетный котёл против электрического, то последний значительно выигрывает. Главный «козырь» последнего — высокий коэффициент полезного действия. За счёт установки автоматических терморегуляторов на батареях, экономический эффект становится ещё выше. Кроме этого, грамотно организованное электрическое отопление частного дома отличается долговечностью, простотой в ежедневной эксплуатации и бесшумностью. Весьма привлекателен тот факт, что организация электроотопления не требует получения каких-либо разрешительных документов на установку.
Варианты отопления частного дома электричеством
Сегодня имеется возможность создать разные системы обогрева жилища, использующие электрическую энергию. Многие из них не требуют монтажа радиаторов, дымоходов и трубопроводов. Нередко такими системами, но не всеми, можно управлять даже дистанционно. К основным видам относятся следующие варианты:
- Котлы отопления для частного дома на электричестве, являющиеся основой конвективной системы. Это классический вид обогрева помещений при использовании теплоносителя. Каждая такая система отличается высоким КПД, что позволяет быстро установить нужную температуру в доме.
- Электроконвекторы, у которых рабочим элементом является ТЭН, закрытый изолятором из керамики и алюминиевым или стальным корпус. Циркуляция воздуха в комнате осуществляется из-за того, что нагретая масса поднимается вверх, уступая место холодной среде. Производители выпускают напольные, настенные, встраиваемые и другие виды устройств.
- Электрический теплый пол, подходящий для создания дополнительного комфорта. Он изготавливается из тонких проводников тока. Для этого используется специальная пленка или кабель, который может укладываться зигзагообразно, волнами и полосами. Греющие компоненты заливаются бетоном, закрываются досками или застилаются линолеумом или другим напольным покрытием.
- Инфракрасные обогреватели — это самый экономичный способ среди всех вариантов электрического нагрева объекта. Существуют модели, предназначенные для размещения на стене, полу или даже потолке. Они действуют исключительно на определенную зону жилища. Приборы нагревают все предметы, расположенные на пути их изучения.
- Отдельные электроприборы – тепловые пушки, вентиляторы, масляные обогреватели и так далее. В большинстве случаев они способны выполнять в здании только вспомогательную функцию. Если комната небольшая, тогда приборы повысят относительно быстро комфортные условия. Однако этого сделать не удастся во всем строением.
Однофазные и трехфазные электрические котлы
К выбору котла следует отнестись ответственно, поскольку нужно учитывать все нюансы, касающиеся электрообслуживания вашего дома. Электролинии не всегда способны справиться с нагрузкой, которая повышается после установки котла. Чтобы таких проблем не возникало, посетите отделение энергосбыта, к которому относитесь, и уточните (или попросите рассчитать) максимальную мощность, которую они смогут обеспечить. При расчете необходимых киловатт не забудьте про бытовые электроприборы, находящиеся у вас дома.

Схема строения одноконтурного настенного электрического котла: 1 — электрошкаф; 2 — контрольные лампы; 3 — регулятор температуры; 4 — термометр/манометр; 5 — выключатели мощности; 6 — главный выключатель; 7 — расширительный бак; 8 — кабельный ввод; 9 — предохранительный клапан; 10 — насос; 11 — обратная линия котла; 12 — штекерное соединение контура регулирования; 13 — предохранительный ограничитель температуры; 14 — предохранитель системы управления; 15 — воздушный клапан; 16 — облицовка котла с теплоизоляцией; 17 — реле давления воды; 18 — нагревательные стержни; 19 — подающая линия котла
Электрический котел устроен довольно просто: он содержит теплообменник и блок управления и регулировки. Существуют доукомплектованные модели, которые снабжены расширительным баком, фильтром и насосом.
Для отопления частных домов применяются электрокотлы небольшой мощности: однофазные и трехфазные.

Схема каскадного подключения электрического котла
Однофазный электрический котел
Однофазным считается котел, работающий от сети 220 В. Подключить его не составит труда, поскольку все дома оснащены необходимым напряжением. Мощность устройства варьируется от 6 до 12 кВт. Целесообразно использовать такой котел для площади, не превышающей 100 м?. Особенности электрического котла для отопления дома (220 В):
- работает по принципу водонагревательного прибора (бойлер, чайник);
- для работы достаточно обычной сети (220В);
- для его установки не нужно получать специальное разрешение.

Электрический котел для использования в частном доме
Трехфазный электрический котел
Трехфазный котел более мощный, чем однофазный, и подходит для установки на площади более 100 м?. Чтобы сеть могла выдержать нагрузку при эксплуатации котла, их производят трехфазными, то есть подключаются они к сети на 380 В. Особенности трехфазного котла:
мощный
Нужно брать во внимание отапливаемую площадь. На 10 м? требуется 1 кВт + 10-20% (для запаса);
работает от трех фаз (380 В), необходимо увеличивать мощность подачи тока в доме;
необходимо получение специального разрешения в энергосбыте на увеличение потребляемой мощности и установку котла;
номинальный ток, который должен быть в каждой из трех фаз, варьируется от 6,1 до 110 А. Этот показатель влияет на выбор автоматического выключателя, проводку, ее поперечное сечение (допустимые показатели указаны в таблице ниже). Правильный подбор необходимых элементов исключит возможность возгорания.
Таблица «Значения сечения кабеля и тока предохранительных автоматов»:
| Мощность котла (до указанного значения) | Значение тока предохранительных автоматов, для однофазных котлов | Значение тока предохранительных автоматов, для трехфазных котлов | Сечение кабеля для однофазных котлов | Сечение кабеля для трехфазных котлов |
| 4 кВт | 25 А | 4,0 мм? | ||
| 6 кВт | 32 А | 6,0 мм? | ||
| 10 кВт | 50 А | 10,0 мм? | ||
| 12 кВт | 63 А | 16,0 мм? | 2,5 мм? | |
| 16 кВт | 32 А | 4,0 мм? | ||
| 22 кВт | 40 А | 6,0 мм? | ||
| 27 кВт | 50 А | 10,0 мм? | ||
| 30 кВт | 63 А | 16,0 мм? | ||
| 45 кВт | 80 А | 25 мм? | ||
| 60 кВт | 125 А | 35 мм? |
Какой бы котел не устанавливался для дешевого отопления дома электричеством, в любом случае, необходимо предусмотреть резервный источник тепла.

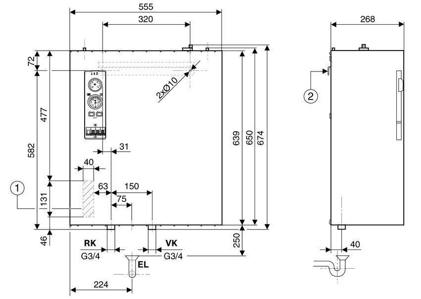
Монтажные размеры электрического котла Buderus Tronic 5000 Н
Сколько электроэнергии потребляет электрический котел
Существует множество видов агрегатов, которые используют для обогрева домов: так, если принципом работы прибора является сгорание различного топлива, то он совмещает в себе несколько функций:
- Преобразование энергии.
- Генерирование энергии.
Электрические котлы не имеют функции генерирования энергии, они только преобразовывают ее из электроэнергии в тепловую. А это значительно повышает их коэффициент полезного действия (КПД).
Стоимость такого оборудования зависит от нескольких составляющих:
- То, в каком месте расположено жилье.
- Постоянно ли проживают люди в данном помещении.
Для правильного подбора агрегата, которым будет обогреваться помещение, необходимо учитывать некоторые условия:
- Стоимость отопительного прибора.
- Затраты на приобретение радиаторов, конвекторов, трубопроводов и т. д.
- Дополнительные траты на монтаж данного оборудования.
- Траты на документацию и подключение к электрическим сетям.
Выбирая агрегат для отопления, многие домовладельцы предпочитают именно электрические котлы. По сравнению с другими видами приборов у них высокая производительность и широкий спектр обогрева — от маленьких домиков до коттеджей с большой площадью. Как ни старайся, а без некоторых расчетов при выборе данного устройства никак не обойтись.
Необходимо определиться, сколько контуров должно быть на данном оборудовании. Если это двухконтурный агрегат, то нужно решить, как он будет использоваться — только для обогрева помещения или также для согревания воды.
После выполнения этих формальностей необходимо определиться еще с некоторыми параметрами:
- Выбор прибора зависит от того, какая будет площадь обогреваемого помещения.
- Какое напряжение доступно для того, чтобы подключить устройство к электросети.
- Продолжительность отопительного сезона.
- Постоянно ли нужно отопление в зимний период (в какой месяц предполагается пребывание проживающих в отапливаемом помещении).
- Какое время отопительный агрегат будет работать на максимальной нагрузке.
- Его производительность и КПД.
- Расход электроэнергии в месяц.
Сколько электроэнергии потребляет электрический котел?
Количество потребляемой электроприбором энергии зависит от многих параметров, и точный ее расчет можно получить, только зная характеристики помещения.
Если же рассматривать среднестатистические показатели, при которых потребление электроэнергии устройством считается приблизительно, то расчет таков: на обогрев дома площадью 50 кв. м, прибору, имеющему мощность 3 кВт, понадобится 0,7 кВт/час, поэтому за сутки при непрерывном режиме работы он может израсходовать 16,8 кВт/час.

Другое электрическое отопление загородного дома
Но обогрев дома электрическим котлом не единственный вариант отопления электричеством. Давайте посмотрим на все современные типы электрического отопления, а также подумаем какую часть из них реально можно использовать для обогрева загородного дома.
Примечание: Мы говорим о загородных домах постоянного проживания, где отапливать дом нужно каждый день, а не три дня в неделю. Хотя о таких домах-дачах, я тоже кое-что скажу.
Существует несколько вариантов, сделать электрическое отопление загородного дома. Объединяет их, общий принцип работы, а именно, использование перехода электрической энергии в тепловую энергию нагревательных элементов, которая в сою очередь расходуется на нагрев либо воздуха в помещении, либо теплоносителя в системе отопления. Теплоноситель циркулируя по системе отопления, через радиаторы, нагревает воздух комнат в доме.
В статье рассмотрим следующие типы электрического отопления дома:
Возможные варианты
Прежде чем приступить к выбору подходящего отопительного оборудования, необходимо определиться с конфигурацией и взаимным расположением элементов отопительной системы. Добиться желаемого результата можно несколькими способами. Для обогрева загородного дома электричеством его можно использовать
- устройства с прямой теплопередачей. Такое оборудование позволяет отказаться от монтажа отопительного контура. Тепло передается непосредственно от источника к окружающей среде. Они менее инертны, чем предыдущая версия.
- промежуточный теплоноситель. Вариант предусматривает установку отопительного контура, внутри которого теплоноситель циркулирует непрерывно. По мере нагрева трубка начинает отдавать тепло в окружающее пространство, постепенно нагревая воздух до оптимального уровня. Для реализации такой схемы сначала разрабатывается проект. Рассчитываются характеристики элементов будущей системы, их пространственное расположение относительно друг друга. Подбирается оптимальное место для размещения;

При использовании промежуточного теплоносителя особое внимание уделяется порядку прокладки труб. Она могла быть:
- горизонтальный или вертикальный.
- одна и две трубы. Последний вариант позволяет создать комфортные условия сразу во всех помещениях. Нагретый теплоноситель подается по одной трубе, а охлажденный – по другой в котел;
Особое внимание уделяется месту установки радиаторов. Они должны полностью отводить тепло, обеспечивая равномерное распределение тепла по внутреннему пространству
Наиболее эффективной и рациональной считается планировка, предполагающая размещение радиаторов отопления по всему периметру комнаты.

Как экономно обогреть дом электрическим котлом
Итак, решено – ЭО быть, или оно уже было установлено у вас ранее. Знаете ли вы, что практически на любом оборудовании можно неплохо экономить, если правильно его использовать? Если нет, то следующие лайфхаки вам в помощь.
Электрический с теном
Если же говорить об экономии, то расход с тэновыми котлами средний, хотя его достаточно легко регулировать. Главное – чтобы его номинальная мощность и режим работы не перегружал общую сеть, о чем следует позаботиться заранее, внимательно изучив характеристики котла.
Электрический котел характеризуется высокой степенью безопасности эксплуатации
Индукционный
Если же вы хотите настоящей экономии, то индукционный котел станет идеальным решением. Построенная на основе трансформаторной катушки с двойной обмоткой разных видов, конструкция такого отопительного прибора занимает минимум места в доме, обогревая его в кратчайшие сроки.
А вот стоит такое оборудование немало, хотя эти вложения будут очень быстро оправданы.
Электродный
Ключевая особенность этой конструкции сводится к оснащению электродами, которые и выполняют функцию нагревательного элемента всей системы отопления. В этом случае удается получить тепло посредством прохождения разряда через теплоноситель (рабочую жидкость), благодаря чему удается предотвратить образование накипи, что сильно облегчает процесс эксплуатации такого оборудования.
В электродных котлах нагревательную функцию выполняют электроды
Единственный недочет заключается в необходимости использования специальной рабочей жидкости или проведения ее комплексной очистки с помощью специальных составов, что само по себе предполагает лишние расходы.
Какие обогреватели не подходят для системы отопления
Иногда приходится читать несправедливую критику в адрес некоторых типов отопительных приборов. Их критикуют не за реальные недостатки, а за вымышленные. Хотя в конце критики выводы делают полностью правильные – эти приборы можно использовать только как вспомогательные обогреватели, а построить экономичную систему отопления с их помощью нельзя.
Масляный радиатор
Считается неэкономичным – критики утверждают, что его не стоит использовать в качестве обогревательного прибора из-за высокого расхода электроэнергии и низкой отдачи. Но именно у этого типа устройства один из самых высоких КПД – около 98%. То есть, практически всю электрическую энергию он преобразовывает в тепло (закон сохранения энергии еще никто не отменял), а те незначительные потери в 2% приходятся на сопротивление внутренних стенок радиатора теплоносителю. Да, он инерционный – долго разогревается, но и долго остывает.
Но это свойство всех батарей, в том числе и водяного отопления, у которых основной способ передачи тепла – это естественная конвекция, а она протекает медленно.
Главный недостаток – «грубая» регулировка мощности и применение механических термостатов. А такое неточное управление температурными режимами делает масляный радиатор неэффективным при попытке оптимизировать расходы на отопление электричеством в частном доме. И еще, у него довольно высокая температура корпуса при работе на полную мощность, что опасно, если в доме есть маленькие дети.

Есть модели масляных радиаторов, которые можно вешать на стену
Тепловентилятор
Про тепловентилятор часто пишут, что он сжигает кислород. Но «сжигание кислорода» не что иное, как процесс окисления (горения), а максимум, что может сгореть при довольно невысокой температуре спирали – это органическая пыль в воздухе. Поэтому говорить о сжигании кислорода (все-таки не дрова горят) некорректно, так как этот незначительный объем должен восполняться в результате обязательной вентиляции помещения.
КПД такого прибора немного ниже, чем у масляного радиатора (часть электроэнергии уходит на работу вентилятора), но не очень сильно отличается, если учитывать что мощность двигателя самого вентилятора небольшая (около 50 Вт из общих 1 или 2 кВт). Достоинство – очень быстрый прогрев помещения. Недостатки – постоянный уровень шума (пусть и незначительный) и перенос пыли по всему помещению. А главный недостаток у этих бытовых приборов – ручная регулировка мощности и призрачная возможность создания на основе тепловентиляторов автоматизированной системы отопления.

Тепловентилятор самый компактный отопительный прибор, и он отлично подходит для обогрева небольшой зоны
Поэтому еще раз необходимо подчеркнуть, что основная причина из-за которой какие-то виды электрических обогревателей не подходят для отопления дома – это не КПД (он почти у всех выше 95%), а невозможность автоматизации управления системой. Именно этот фактор не позволяет оптимизировать работу системы отопления, а без этого сделать обогрев дома электричеством дешево – невозможно.
Монтаж труб отопления схема, ее виды
Для монтажа системы отопления, на основе полипропилена, можно выбрать несколько вариаций схем. Монтаж труб отопления схема отопительной, полипропиленовой, системы имеет несколько основных разновидностей. Основным критерием, при выборе каждой из них будет вид жилого помещения. Различают три, основные вида монтажных схем:
- Однотрубная
- Коллекторная
- Двухтрубная
Каждая из этих систем по-своему уникальна и позволит повысит уровень комфорта жилого помещения и степень его обогрева. Стоит упомянуть, что все составляющие этих схем отопления стоят сравнительно недорого, и будут по карману каждому.






























